For sale Detached Villa Costa Del Sol Sotogrande Alto € 3.795.000,-

Sotogrande Alto

from € 3.795.000,-

DESCRIPTION

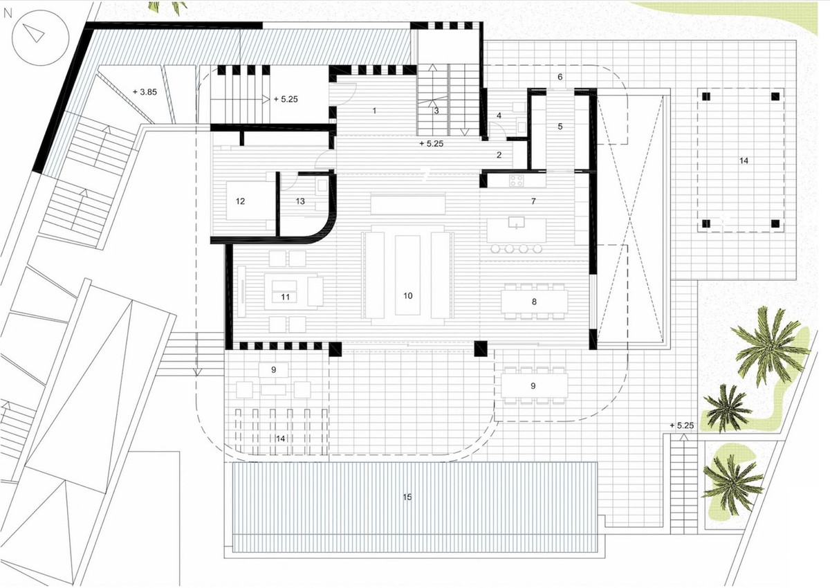
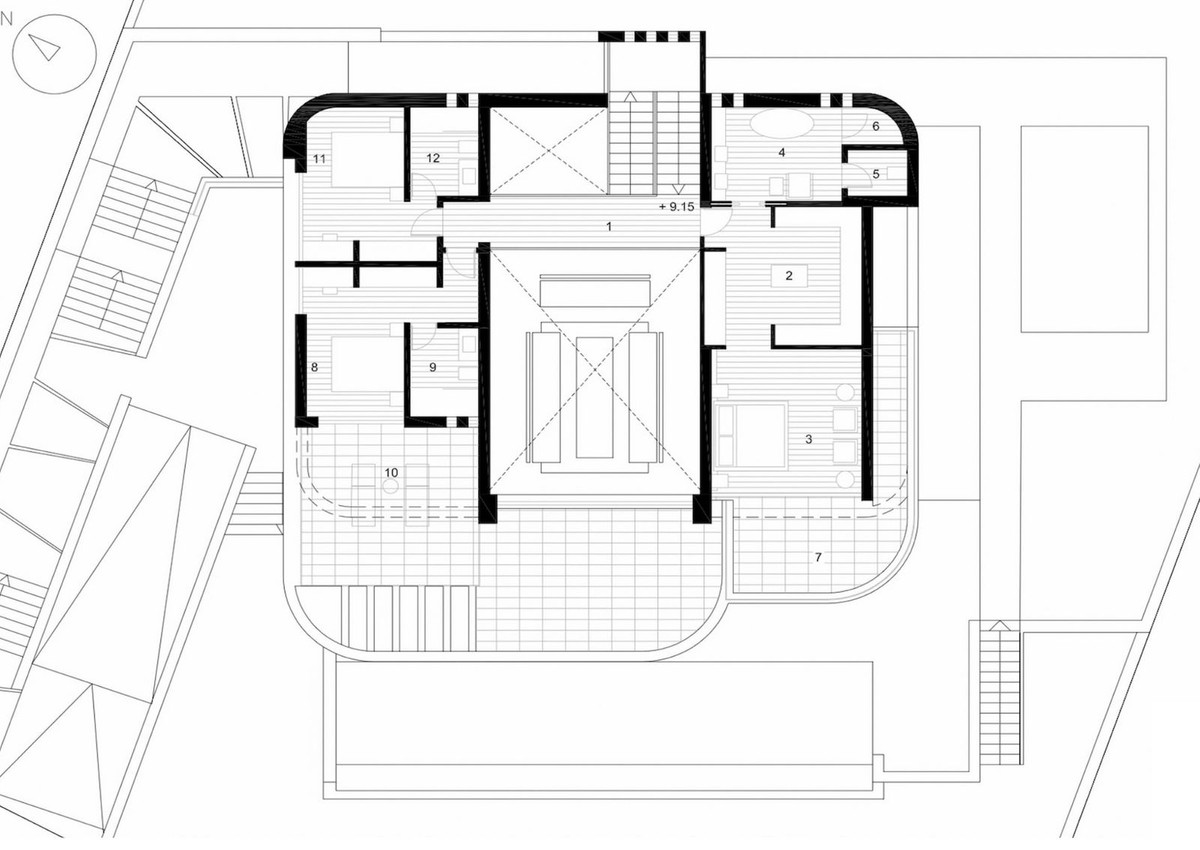
Off-plan contemporary Ecological villa in La Reserva de Sotogrande with fantastic panoramic views and will have 4 bedrooms with 4 ensuite bathrooms and a guest toilet. This property will be constructed on 3 floors and consist of; Basement: garage, installations room, storage room, distributor, waterfall machinery room, living room, billiard room, 1 bedroom with full size window and natural light, ensuite bathroom, cinema room, pool installations room and a Zen patio. Ground floor: entrance hall with distributor, guest toilet, pantry/laundry room, fully fitted kitchen, dining room, lounge, living room, 1 bedroom with ensuite bathroom, pool, chill-out, BBQ and garden, terraces and ca overed terrace. First floor; distributor, dressing room, master bedroom with Home Spa, toilet, shower and terrace, another bathroom with ensuite bathroom and terrace. As you can see there is not elevator in the plans but if the client wants this will be provided without extra cost and will increase to total constructed area with approx.20,00 m2. Pictures of bathrooms and kitchens are just examples of how it could be but the final choice will be that of the client! Example of some of the specifications; - Highly insulated basement floor and roof with JACKODUR or similar - Insulated cavity walls - Interior and exterior floor tiles from GRESPANIA 600x600 - 800x800 - 1200x1200 (Color and size of choice) - Bathroom walls with COVERLAM plates 2700X1200 (Color of choice) - Bathrooms from ROCA - Aerothermia/airconditioning - Elevator from Schindler - Underfloor heating in the full villa - Ceiling high windows with a sunken track, 5+5/chamber/6+6 - Ceiling high and 1-meter-wide doors - Ceiling high pivot door and 1,50 wide - Fully fitted kitchen with aluminum frame doors and fitted with COVERLAM (Color of choice) - Island with COVERLAM 3600X1600 no visible joints - White goods from Bosch or AEG (Constructors choice) - Plugs, switches and dimmers from NIESSEN - Heated pool - 20 voltaic panels - 2 lithium batteries of each 10kW - Car-charger - Domótica We are a construction company, Key-in-Hand, that can design and construct any possibility you can think of. If you do not see a design of us that you like we design a totally new villa for you according to your ideas and input. Although we prefer to construct ecological building, we can construct from traditional construction to ecological constructions it all depends on you.

Responsive image
3500m²
Responsive image
4
Responsive image
5
Responsive image
yes
Responsive image
3500m²
Responsive image
4
Responsive image
5
Responsive image
yes

Bedrooms: 4

Bathrooms: 5

Lot size: 3500m²

Living area: 670m²

Pool: yes

Garden: yes

Parking: no

Cooling:

Storage:

Elevator:

Completion: 2025

Floor: Yes

AREA
Setting: Close To Golf, Close To Schools, Close To Forest, Urbanisation Orientation: East, South East, South, South West, West Pool: Private, Heated Climate Control: Air Conditioning, Hot A/C, Cold A/C, Fireplace, U/F Heating, U/F/H Bathrooms Views: Mountain, Country, Panoramic, Garden, Pool Features: Covered Terrace, Lift, Fitted Wardrobes, Private Terrace, Solarium, WiFi, Games Room, Guest Apartment, Storage Room, Utility Room, Ensuite Bathroom, Access for people with reduced mobility, Barbeque, Double Glazing, Domotics, Restaurant On Site, Basement, Fiber Optic

REQUEST FOR MORE INFORMATION

Please fill in the form below to receive more information about this new development. (* are required fields)

You can also contact the office by e-mail or phone:
+34 952 830 378 / +34 677 670 480

SEND US AN ENQUIRY


Please consider to accept our privacy policy



Alternatives

[alt]

For sale Detached Villa Costa Del Sol San Pedro De Alcántara € 3.695.000,-

Price € 3.695.000,-

More information
[alt]

For sale Detached Villa Costa Del Sol El Paraiso € 3.749.500,-

Price € 3.749.500,-

More information