For sale Detached Villa Costa Del Sol Benahavís € 3.695.000,-

Benahavís

from € 3.695.000,-

DESCRIPTION

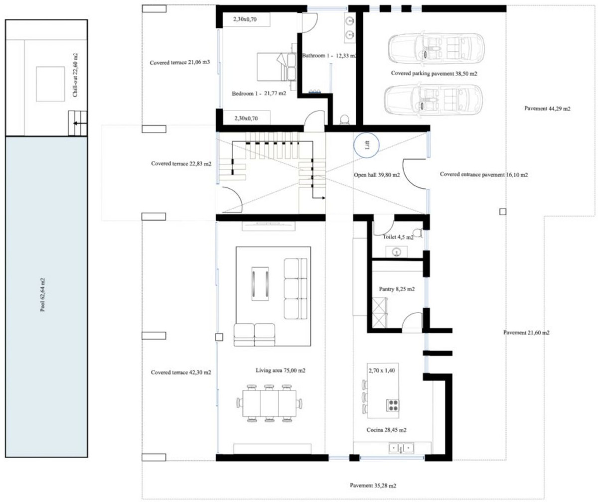
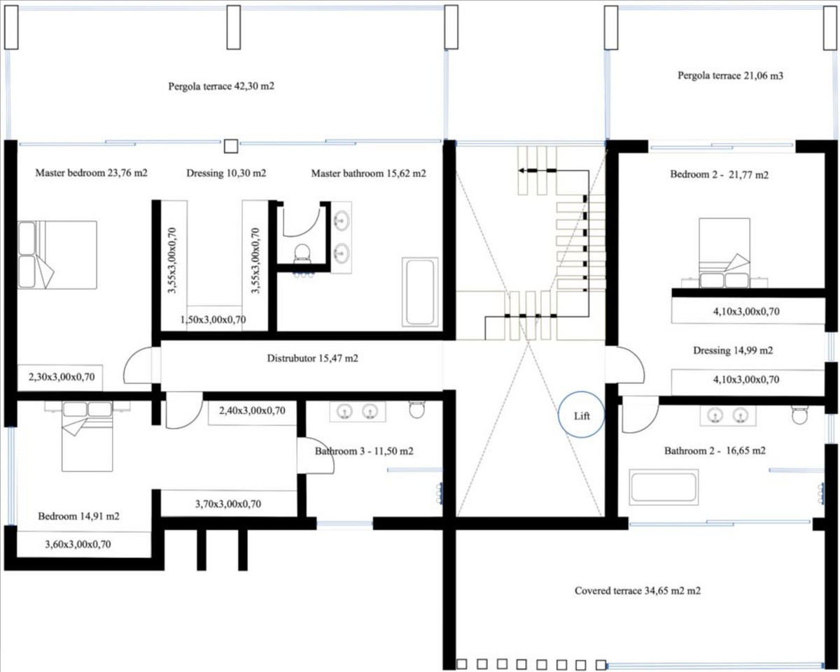
OFF-PLAN LUXURY CONTEMPORARY ECOLOGICAL VILLA WITH PANORAMIC VIEWS IN MONTE MAYOR – BENAHAVIS – Total constructed on 3 floors with a total constructed area of 1.334,00 m2 This contemporary luxury villa simply has everything ... it will be built on 2 or 3 floor, clients choice, on a plot of approx 7.825 m2 in Monte Mayor, Benahavis a luxury urbanization in a green area. Ground floor: double height hall with staircase, pneumatic elevator, and guest toilet, a large living/dining room giving out to the large terrace with pool and chill-out area, fully equipped kitchen with a pantry. There is also a bedroom with ensuite bathroom on the ground floor. First floor: Master bedroom with en-suite bathroom with 2 dressing rooms and 2 private terraces On this floor, we have also another 2 bedrooms with ensuite bathrooms and dressing. One of the bedrooms has access to the terrace. Basement; hall, garage, toilet, sauna, games room, storage room and technical pool room. Construction time 12-14 months after licenses! The photos of the bathrooms and kitchens are examples, of how we could build this for you, the final decision will be yours. Example of some of the specifications, - Interior and exterior floor tiles from GRESPANIA 600x600 – 800x800 - 1200x1200 (Colour and size to choose) - Bathroom walls with COVERLAM plates (GRESPANIA) 2700X1200 (Colour to choose) - Bathrooms from ROCA or similar - Kitchen with steel frame doors covered with COVERLAM and kitchen island from COVERLAM - Aerothermia/airconditioning - Underfloor electric heating in the bathrooms - Underfloor hydraulic heating on ground fsaloor and first floor - Ceiling high windows with a sunken track, 5+5/chamber/6+6 - Ceiling high and 1-meter-wide interior doors - Ceiling high pivot door and 1,50 wide - Fully fitted kitchen - Household appliances from Bosch or similar - 20 solar panels - 2 X 10kW batteries - Car charger - Domotica - Electric sun blinds in living room and kitchen - Dusk till dawn lights on outside - LED lights in driveway - LED ceiling lights in full villa - Heated pool Optional - Full kitchen from COVERLAM with aluminum frame doors (Price on request) - Full basement/garage/games room, extra bedroom and bathroom (Price on request) We are a construction company, Key-in-Hand, that can design and construct any possibility you can think of. If you do not see a design of us that you like we design a totally new villa for you according to your ideas and input. Although we prefer to construct ecological building, we can construct from traditional construction to ecological constructions it all depends on you. INCLUDED - Plot - Basic & technical architects project - Construction licenses - Full construction

Responsive image
7825m²
Responsive image
4
Responsive image
6
Responsive image
yes
Responsive image
7825m²
Responsive image
4
Responsive image
6
Responsive image
yes

Bedrooms: 4

Bathrooms: 6

Lot size: 7825m²

Living area: 770m²

Pool: yes

Garden: yes

Parking: yes

Cooling:

Storage:

Elevator:

Completion: 2025

Floor: Yes

AREA
Setting: Suburban, Mountain Pueblo, Close To Golf, Close To Forest, Urbanisation Orientation: East, South East, South, South West Condition: New Construction Pool: Private, Heated Climate Control: Air Conditioning, Hot A/C, Cold A/C, U/F Heating, U/F/H Bathrooms Views: Mountain, Country, Panoramic, Garden, Pool, Urban, Street Features: Covered Terrace, Lift, Fitted Wardrobes, Private Terrace, WiFi, Sauna, Games Room, Tennis Court, Storage Room, Utility Room, Ensuite Bathroom, Access for people with reduced mobility, Double Glazing, Domotics, Restaurant On Site, Basement, Fiber Optic Furniture: Optional Kitchen: Fully Fitted Garden: Private, Easy Maintenance Security: Gated Complex, Electric Blinds, Entry Phone, Alarm System, 24 Hour Security, Safe Parking: Underground, Garage, Covered, Open, More Than One, Private Utilities: Electricity, Drinkable Water, Telephone, Photovoltaic solar panels, Solar water heating Category: Golf, Holiday Homes, Investment, Luxury, Off Plan, Contemporary

REQUEST FOR MORE INFORMATION

Please fill in the form below to receive more information about this new development. (* are required fields)

You can also contact the office by e-mail or phone:
+34 952 830 378 / +34 677 670 480

SEND US AN ENQUIRY


Please consider to accept our privacy policy



Alternatives

[alt]

For sale Detached Villa Costa Del Sol Benahavís € 3.695.000,-

Price € 3.695.000,-

More information
[alt]

For sale Detached Villa Costa Del Sol Elviria € 3.650.000,-

Price € 3.650.000,-

More information
[alt]

For sale Detached Villa Costa Del Sol San Pedro De Alcántara € 3.695.000,-

Price € 3.695.000,-

More information
[alt]

For sale Detached Villa Costa Del Sol Sotogrande Alto € 3.795.000,-

Price € 3.795.000,-

More information