For sale Middle Floor Apartment Costa Del Sol Málaga Centro € 1.175.000,-

Málaga Centro

from € 1.175.000,-

DESCRIPTION

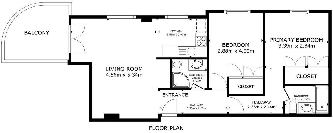
This stunning and luxurious new-build apartment boasts nearly 90 m² of living space. It features two spacious bedrooms, one of which is en suite, ideal for enjoying the comfort and privacy you deserve. Both bedrooms include ample built-in wardrobes. The bright living room opens directly onto a wonderful terrace with spectacular, open views of the Alameda Principal. It's perfect for enjoying important events like Holy Week or simply relaxing outdoors. The designer kitchen, fully equipped with state-of-the-art appliances, will delight any food lover. Large windows throughout allow natural light to flood every corner, creating a warm and inviting atmosphere. The location is unbeatable: just steps from the iconic Calle Larios, you'll have easy access to a variety of shops and leading brands, as well as all the city's main attractions. This apartment stands out not only for its aesthetics but also for its advanced technology. With integrated home automation for remote control and home automation, and an independent aerothermal system for heating, cooling, and hot water, living here means enjoying high energy efficiency and sustainability. High-quality finishes from Porcelanosa guarantee a modern and elegant style in every detail. Including a spacious parking space and an additional storage room, this apartment is a unique opportunity you won't want to miss.

Responsive image
85m²
Responsive image
2
Responsive image
2
Responsive image
no
Responsive image
85m²
Responsive image
2
Responsive image
2
Responsive image
no

Bedrooms: 2

Bathrooms: 2

Lot size: 85m²

Living area: m²

Pool: no

Garden: no

Parking: yes

Cooling:

Storage:

Elevator:

Completion: 2023

Floor: No

AREA
Setting: Town, Commercial Area, Beachside, Port, Close To Port, Close To Shops, Close To Sea, Close To Schools, Close To Marina Orientation: South East Condition: Excellent, Recently Renovated, Recently Refurbished Climate Control: Central Heating Views: Urban Features: Covered Terrace, Lift, Fitted Wardrobes, Near Transport, Private Terrace, Storage Room, Ensuite Bathroom, Double Glazing, Near Church Kitchen: Fully Fitted Security: Gated Complex Parking: Underground Utilities: Electricity, Drinkable Water Category: Bargain, Resale, Contemporary

REQUEST FOR MORE INFORMATION

Please fill in the form below to receive more information about this new development. (* are required fields)

You can also contact the office by e-mail or phone:
+34 952 830 378 / +34 677 670 480

SEND US AN ENQUIRY


Please consider to accept our privacy policy



Alternatives

[alt]

For sale Middle Floor Apartment Costa Del Sol Fuengirola € 1.100.000,-

Price € 1.100.000,-

More information
[alt]

For sale Ground Floor Apartment Costa Del Sol Fuengirola € 1.150.000,-

Price € 1.150.000,-

More information
[alt]

For sale Ground Floor Apartment Costa Del Sol San Pedro De Alcántara € 1.099.000,-

Price € 1.099.000,-

More information
[alt]

For sale Ground Floor Apartment Costa Del Sol San Pedro De Alcántara € 1.225.000,-

Price € 1.225.000,-

More information